出售
~
海洋平台
 · 
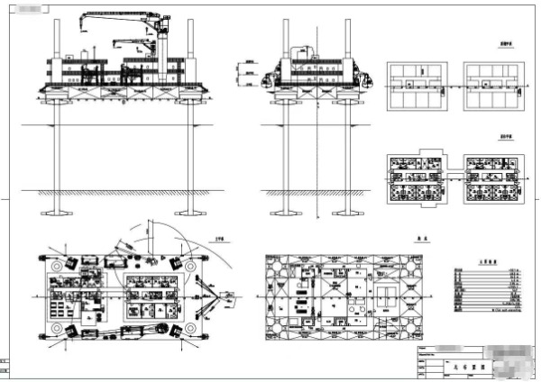
四桩腿自升式居住平台
   上一条
 · · · 
下一条
发布编号:A30186 3086
英语English
已浏览   3165    次!
价格:  
RMB:    3550    万元
     ~ 元/吨
美元:   600    万 USD($)
船尺寸(米) : 48*26*4
航区:
船级(CLASS):
CCS
最后编辑时间:
2025-12-30
在线联系
委托我们
联系方式

达纳船务有限公司
联系电话:13186588840
邮箱:hk@86agency.com
网址:www.船舶交易.com
专属交易员
联系我们时,请说是在船舶交易网上看到的,谢谢!
船舶交易网交易资金监管账户公示
中行      545672102317      南通达纳船务有限公司
中国银行南通优山美地支行
信息编号:A301863086  
 
出售 四桩腿自升式居住平台
CCS 平台住员: 54人
自持能力: 10天
长48m ,型宽26m,型深4.0m
轻载吃水2.68m 重载吃水2.95m
平台共设两个生活楼,艏部34人,
艉部 20 人
www.船舶交易.com --- 提供共享信息 !
为了买卖双方权益和安全!交易过程请通过船舶交易网指定公示账户结算!
船舶需求发布登记
船舶求购,出售,改装资料
请发邮箱:nt@udship.com
WWW.船舶交易.COM